EAST MANNING STREET
LOCATION: PROVIDENCE, RHODE ISLAND

INTERIOR ARCHITECTURE: EZRA SMITH DESIGN LLC

CONSTRUCTION: JAIMAR CONSTRUCTION
A full transformation of the second and

third floor apartments of a three family

home on Providence's East Side into a

spacious and elegant Owner's unit. The

project required a major reworking of

the layout, including adding a second

stairway, a reconfigured kitchen, a

completely new layout on the second

floor, and a new private entryway.
All rights reserved. 2015 EZRA SMITH DESIGN LLC
All Photos Courtesy:
Brian Laferte-Small Hall Studios
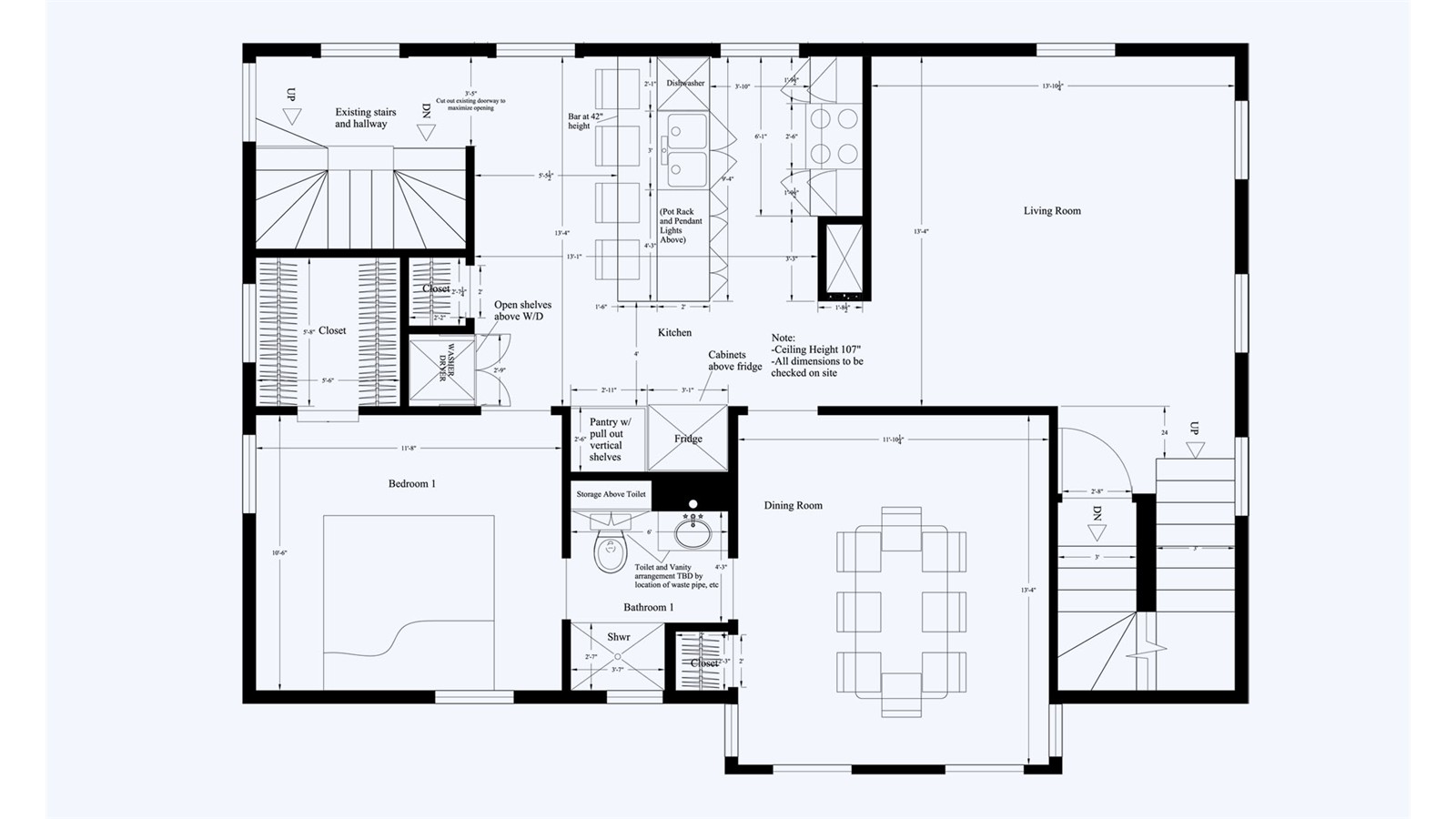
  • 1st Floor-Existing
  • 1st Floor-Renovated
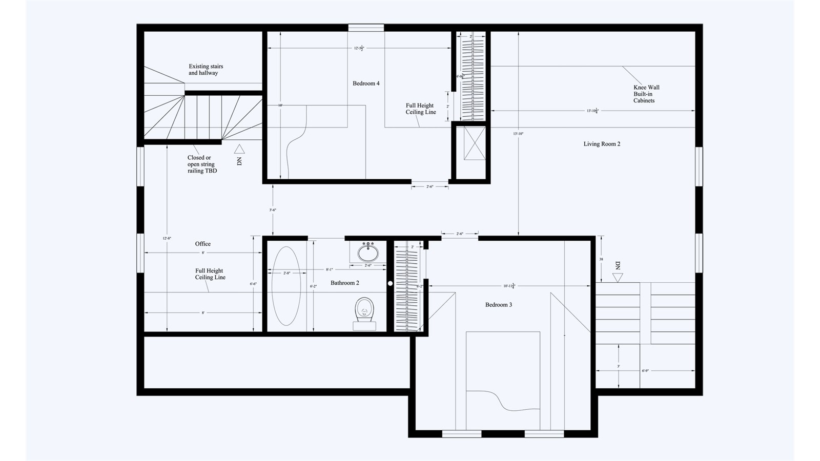
  • 2nd Floor-Existing
  • 2nd Floor-Renovated
  • KITCHEN AND ENTRY
  • BREAKFAST BAR
  • 1ST FLOOR LIVING ROOM
  • DINING ROOM
  • FIRST FLOOR BATH
  • GUEST BEDROOM
  • NEW FRONT STAIRS
  • SECOND FLOOR LIVING ROOM
1st Floor-Existing1 1st Floor-Renovated2 2nd Floor-Existing3 2nd Floor-Renovated4 KITCHEN AND ENTRY5 BREAKFAST BAR6 1ST FLOOR LIVING ROOM7 DINING ROOM8 FIRST FLOOR BATH9 GUEST BEDROOM10 NEW FRONT STAIRS11 SECOND FLOOR LIVING ROOM12