SSV OLIVER HAZARD PERRY
INTERIOR ARCHITECTURE: EZRA SMITH DESIGN

NAVAL ARCHITECTURE:
MATTHEW SMITH, NA

PROJECT MANAGEMENT:
RUSSEL BOSTOCK

INTERIOR CONSTRUCTION-GREAT CABIN: JAMES
THOMPSON WOODWORKING

INTERIOR CONSTRUCTION-ACCOMODATION AND
SERVICE SPACES: CUSTOM SHIP INTERIORS, INC.
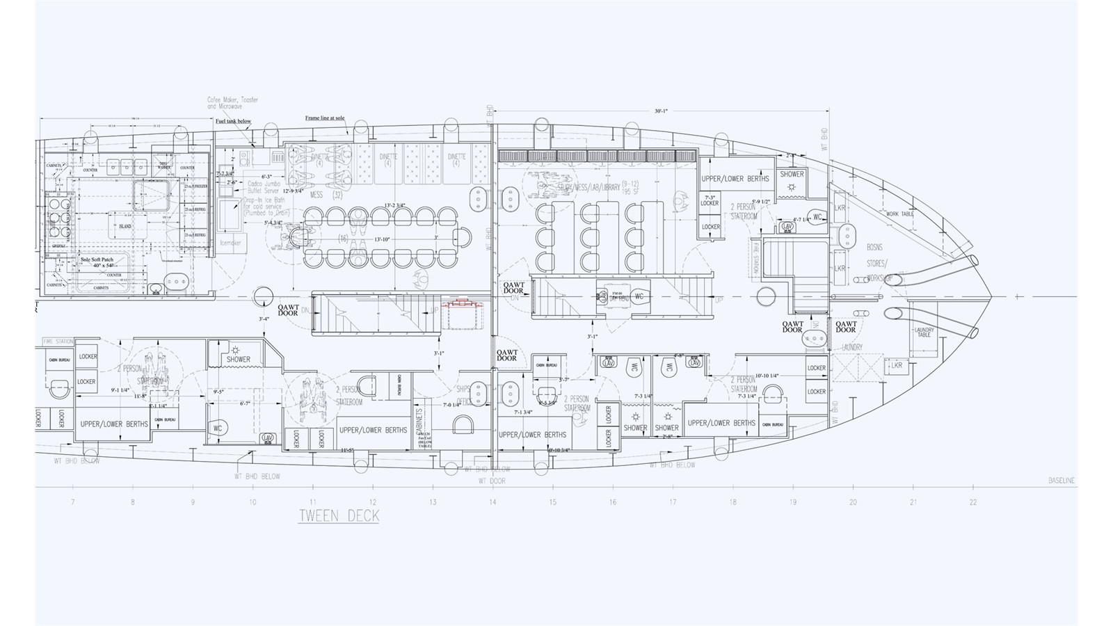
The Perry is a state of the art teaching

platform utilizing the old-world framework of a

square rigged sailing ship to imbue students

with a strong sense of teamwork, problem

solving and self confidence. ESD was

contracted to design all interior spaces,

including two accessible cabins, meeting and

teaching spaces and the spectacular Great

Cabin, rendered in the style of a federal period

warship's captain's cabin. ESD also contributed

to the exterior styling of the ship, as well as

various systems designs.
All rights reserved. 2015 EZRA SMITH DESIGN LLC
  • plan
  • bow
  • great cabin
  • IMG_2389
  • IMG_2348
  • IMG_2306
  • IMG_2457
  • IMG_2464
  • IMG_2453
  • IMG_2452
  • IMG_2454
  • IMG_2476
  • IMG_2469
  • IMG_2458
  • IMG_2462